
This house by Northern Edge Studio explores how mid-century ideas can be adapted to meet current demands. The project draws from the work of William Krisel, reinterpreting key elements such as the butterfly roof and open planning to shape a home that feels both familiar and current.
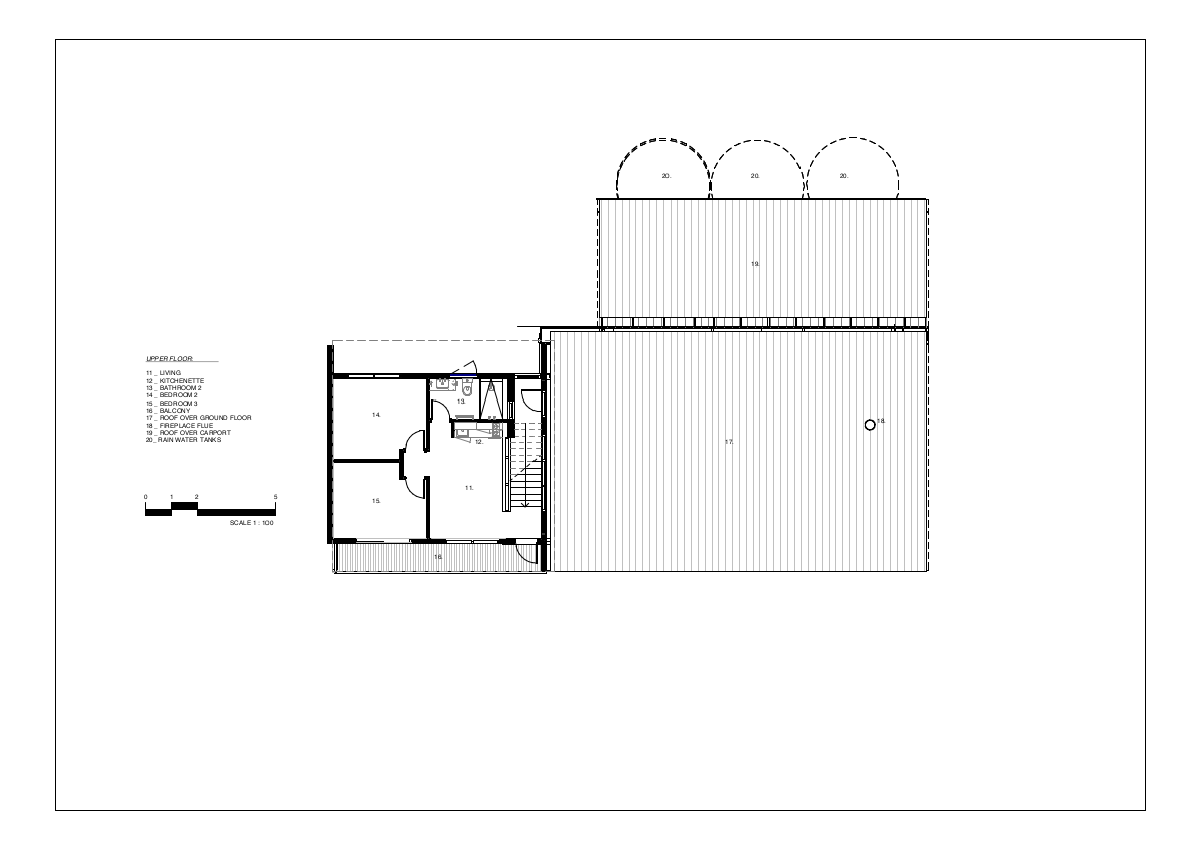
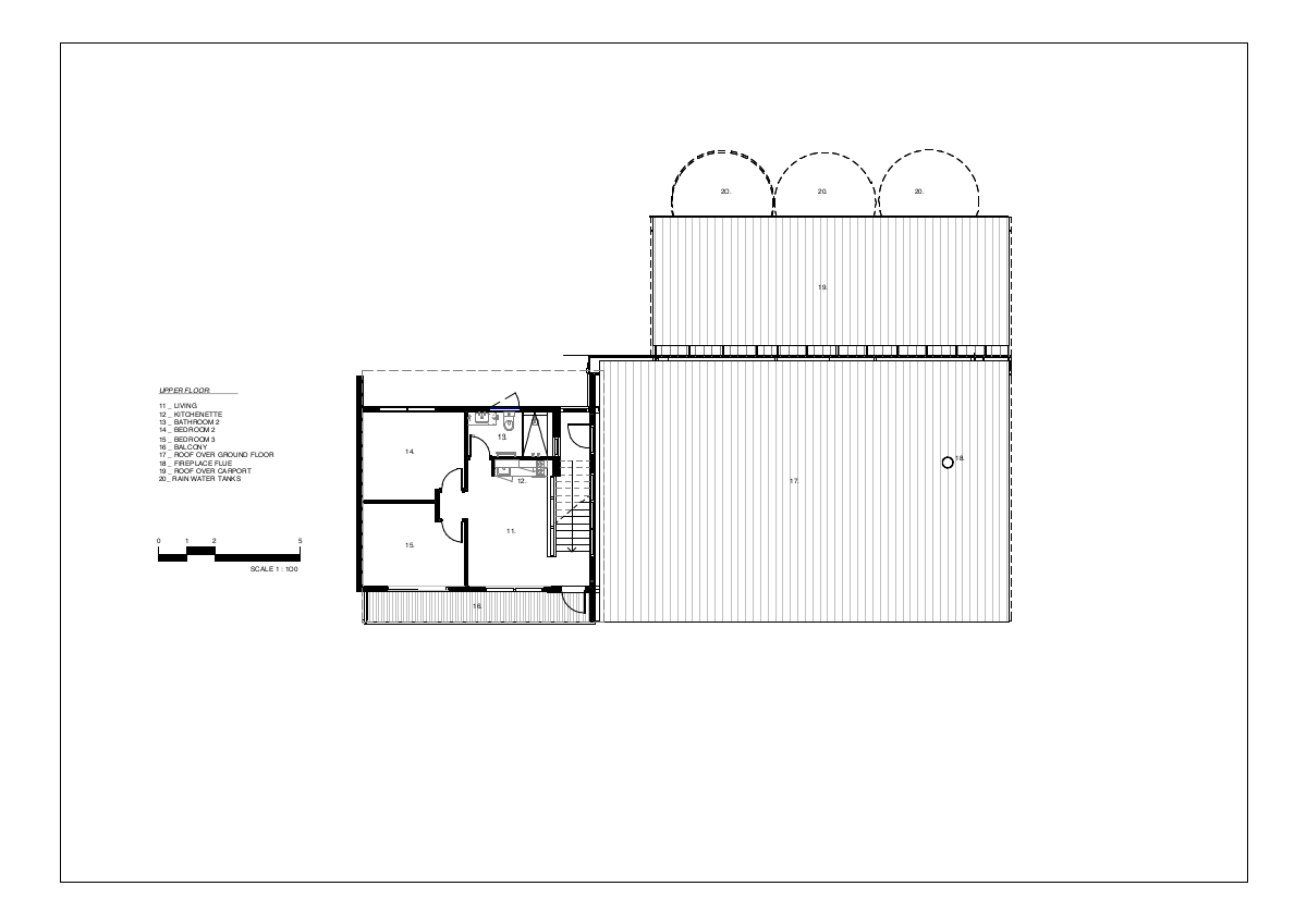
The roof defines the house from the outset. Its butterfly form lifts at the edges, opening the interior to light and views while giving the house a clear profile. It is a feature rooted in mid-century design, but here it also supports performance, bringing daylight deep into the plan and allowing for natural ventilation. This creates a space that feels larger than its size, shaped as much by section as by plan.
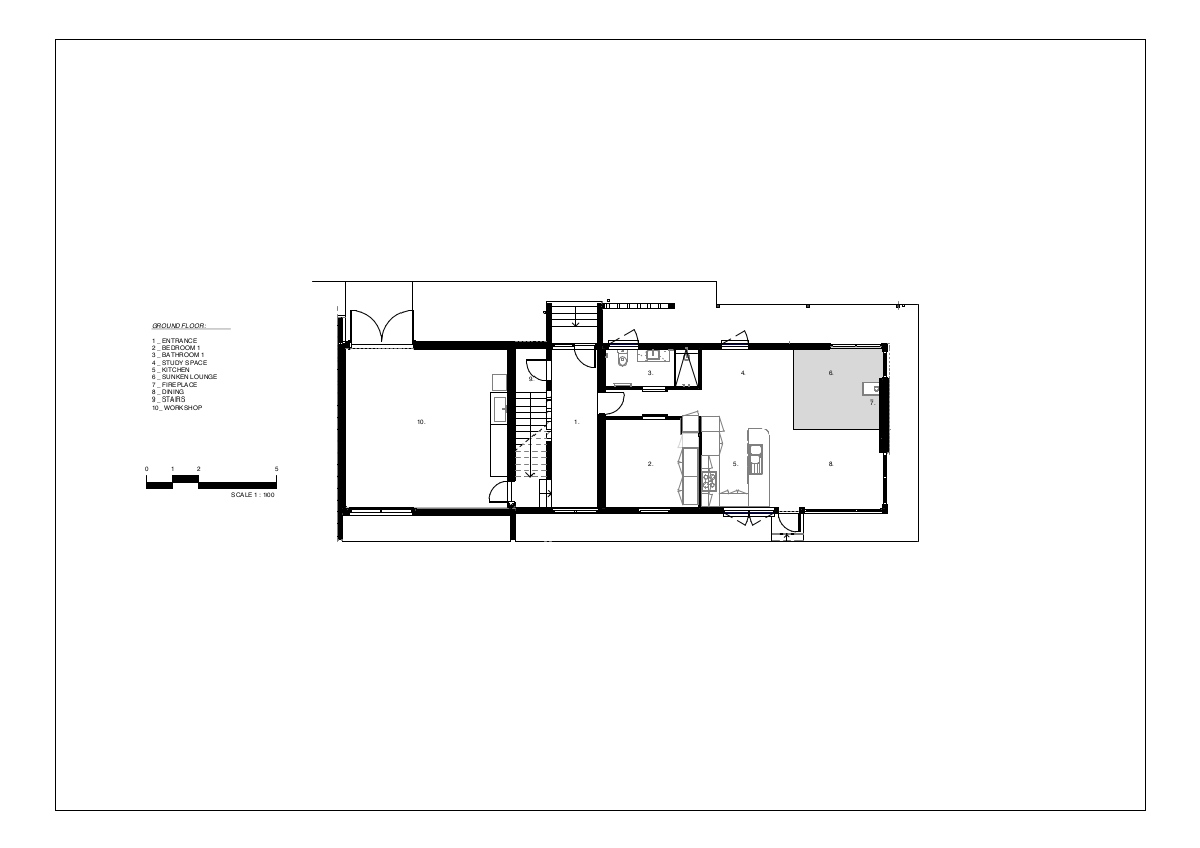
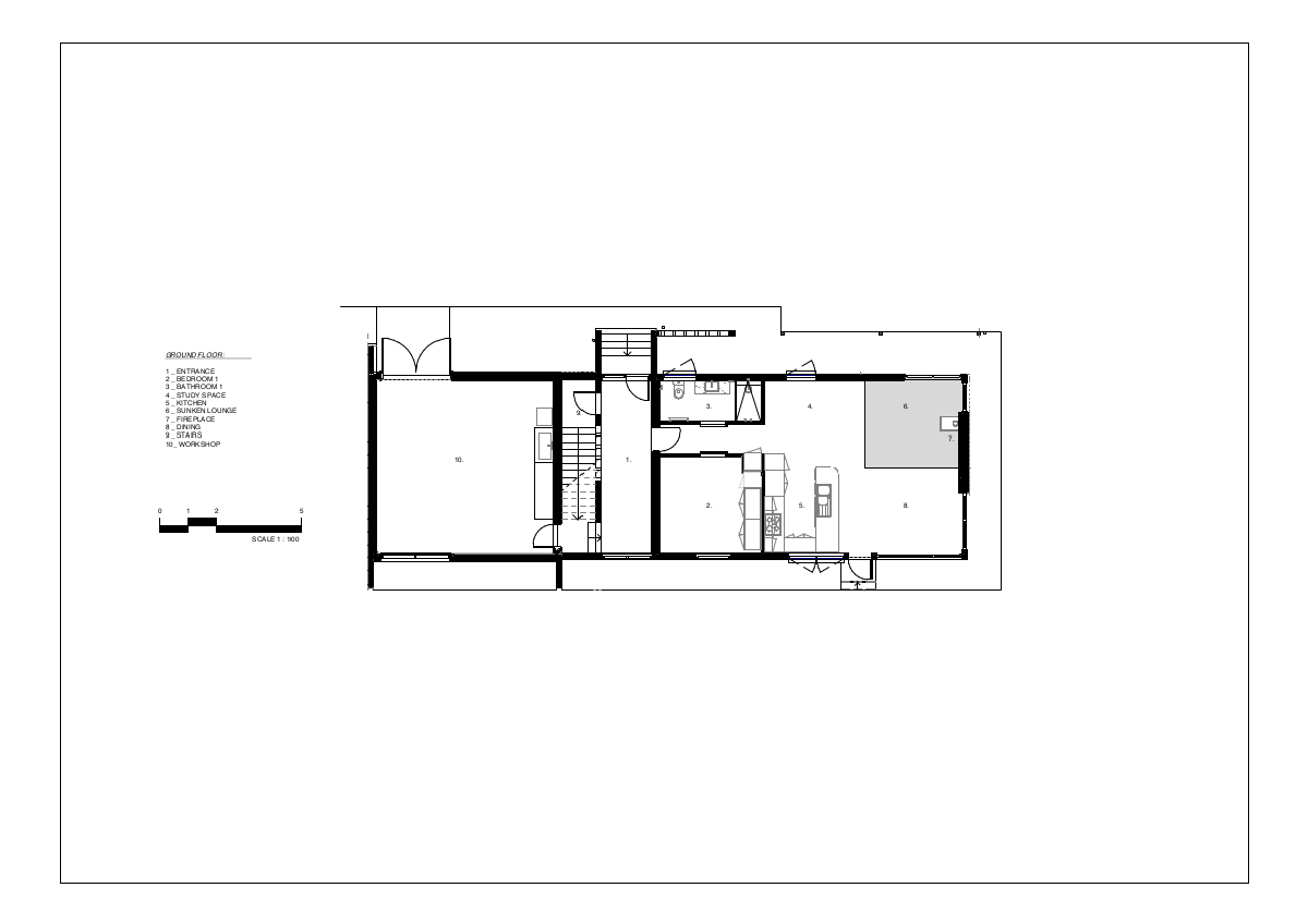
At just over 100 square meters, the house is compact, yet it holds a full program. Three bedrooms, two bathrooms, and two living areas are arranged to make the most of every part of the plan. Instead of relying on excess space, the design focuses on how rooms connect. Circulation is direct, and transitions between areas are handled without interruption. This allows the house to feel open while still providing separation where needed.
Living areas sit at the center of the plan, where light and movement are most active. From here, the house opens outward, connecting to its surroundings through controlled views and direct access. The boundary between inside and outside is kept minimal, allowing daily life to extend beyond the walls.

Material choices play a central role in this balance. Each element is selected for both performance and character. Cork surfaces bring warmth underfoot and support acoustic comfort. Blackbutt cladding defines the exterior, grounding the house in its setting while offering durability over time. Inside, ceilings made from compressed straw panels introduce texture while improving insulation. Concrete block elements add thermal mass, helping to regulate indoor temperatures while reinforcing the structural clarity of the design.
These materials are applied as part of the construction itself. Their presence is direct, allowing the house to read clearly. The palette remains consistent throughout, giving continuity between rooms and between interior and exterior.
Environmental performance is also integrated into the design from the start. The house operates through a combination of passive and active systems. Orientation is carefully considered to capture sunlight, large windows support natural light and cross-ventilation, and solar panels provide renewable energy.




























